Notre gamme de logements pour les collectivités

Gamme Hôme dédiée aux collectivités, Melkôm
Gamme Hôme, Melkôm

Un habitat optimisé
mobile et économe

Hôme est une gamme dédiée aux collectivités, une véritable alternative répondant aux défis actuels du logement.
Hôme propose des résidences accessibles et économiques de qualité. Nos logements s’adapteront à chaque environnement, en optimisant chaque mètre carré pour un confort maximal.

Notre gamme incarne une démarche responsable. Moins gourmande en ressources, mieux isolée et conçue avec des matériaux durables, elles réduisent l’empreinte écologique de l’habitat urbain.

Les résidences Hôme sont également conçues pour être rapidement installées, offrant une solution rapide et efficace face aux besoins croissants en logement. Disponibles en plusieurs tailles, elles sont particulièrement adaptées pour répondre aux urgences ou aux projets d’aménagement à moyen et long terme, tout en intégrant des critères de performance énergétique et de durabilité.

Déclinée en 2 modèles de 28 et 35 m2.

Des logements résidentiels adaptés à vos besoins

Hôme 28

Un habitat optimisé pour les collectivités

2 personnes

1 chambre

1 SDB

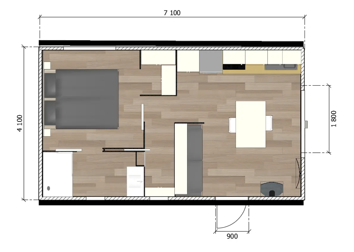
Surface de 28 m²

Imaginez vous l'espace

Plan Hôme 28

Des logements résidentiels adaptés à vos besoins

Hôme 35

Un habitat optimisé pour les collectivités

4 personnes

2 chambres

1 SDB

Surface de 35 m²

Imaginez vous l'espace

Plan Hôme 35